MODULAR HOUSING THAT CHALLENGES THE STATUS QUO.

MULTI PAVILION


Currently undergoing design development and becoming available in 2020, multiple pavilions provide almost endless opportunities for layouts and configurations designed for your specific needs.

CAM_Scene_Mountain 001_RBC_LOWRES.png

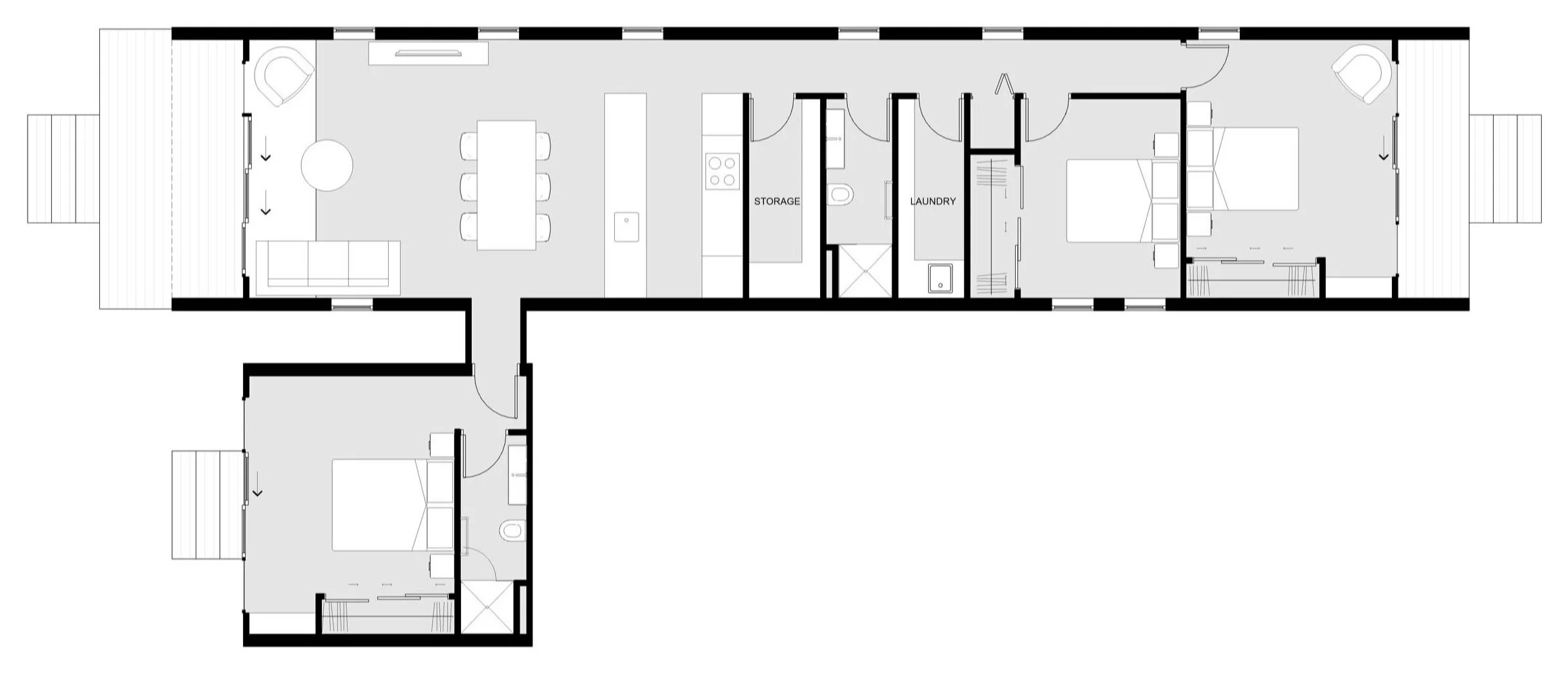
THREE BEDROOM M2-22


Three%2BBedroom_22.jpg

The M2-22 is the ultimate design for parents who are seeking their own sanctuary with a separate pavilion that houses a spacious three module bedroom with a fully glazed end module and an ensuite bathroom. The main pavilion houses two bedrooms and has the same configuration and features as the S-15, with the addition of a laundry module.

M2-22 Range stats.jpg

FOUR BEDROOM M2-25


Four+Bedroom_25.jpg

The M2-25 has four bedrooms, two in each pavilion.  The bedroom pavilion would suit teenagers who like their own space and access to their bathroom. The main pavilion has the same configuration and features as the M2-22 Plan and has plenty of space in the kitchen and living area to accommodate the whole family.

M2-25 Range stats.jpg

FOUR BEDROOM M3-29


Four+Bedroom_29.jpg

This three pavilion house has it all with two pavilions with two bedrooms each, complimented by upsized dual module bathrooms. The central pavilion contains the living and kitchen areas and the galley kitchen spans the whole width of the module, maximising bench and storage space. This is a design where separating living areas from bedrooms is easily achievable, without losing any functionality.

M3-39 Range stats.jpg

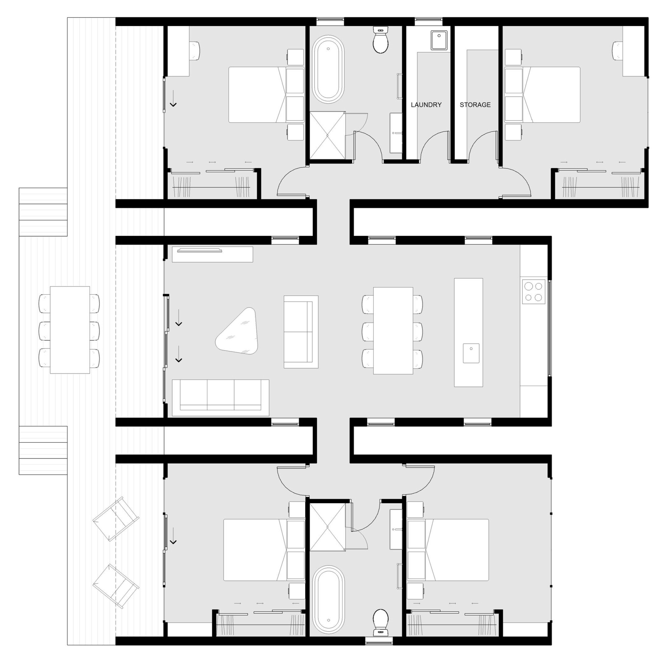
FIVE BEDROOM M3-34


Five+Bedroom_34.jpg

The M3-34 extends the bedroom pavilion design by adding a third bedroom to one pavilion, while retaining a two bedroom configuration in the other bedroom pavilion. Pantry and laundry modules are located directly behind the galley kitchen and the extending living area will accommodate the largest of families. If usable space is what you are seeking this design ticks the boxes.

M5-34 Range stats.jpg

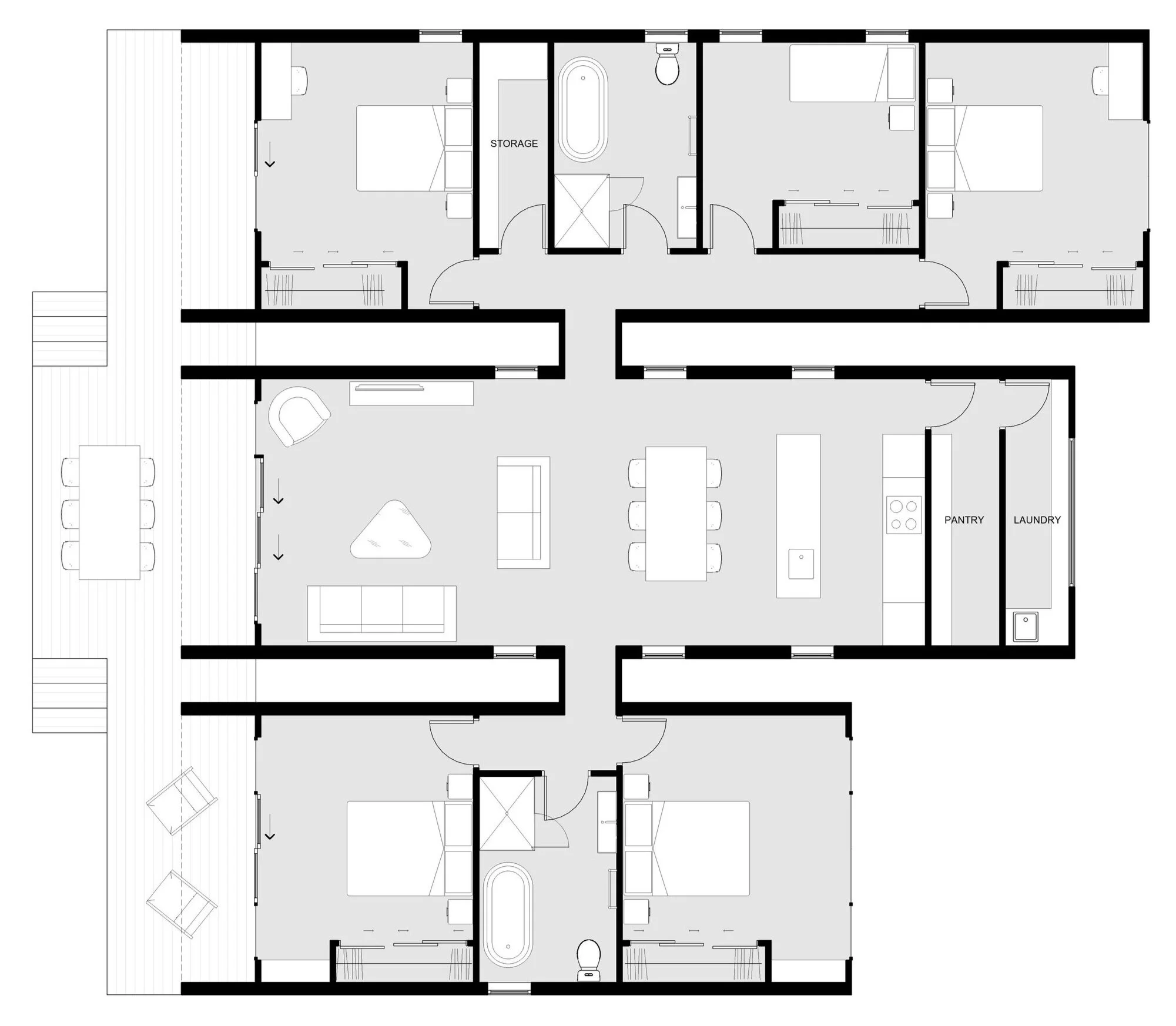
SIX BEDROOM M3-39


Six+Bedroom_38.jpg

The ultimate large family house. Six bedrooms are located in the outer pavilons, with the a Master bedroom having an ensuite bathroom. The central living and dining areas are spacious and the large pantry and laundry will ensure the entire family is catered for with ease. If more space (and quiet) is required, a second living area/TV room could be added by extending the central pavilion behind the laundry.

M3-39 Range stats.jpg
 

Enquire about the Multi Pavilion today 

Or, keep browsing The Range

 
Nautilus+Modular+Blue+Background.jpg